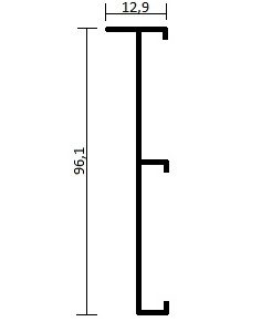
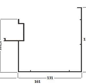
Perfil Esquadria
As esquadrias de alumínio são um material bom, bonito e baratos que podem ser aplicados em portas e janelas. Por ser um material leve, resistente e durável por natureza, ele pode ser utilizado tanto em regiões litorâneas quanto urbanas, pois ele não é afetado pela corrosão causada pela poeira, poluição ou maresia.
Quais as vantagens das esquadrias
1) Variedade: a Vidromax possui uma grande variedade de modelos em esquadrias de alumínio, que se diferenciam tanto pela cor quanto pelo formato e volume.
2) Facilidade de manutenção: diferente de outros materiais, os perfis de alumínio são muito fáceis de limpar e conservar, além disso não exigem manutenção constante como o que acontece com portas e janelas de madeira, por exemplo.
3) Aceita diferentes tipos de vidro: a esquadria de alumínio permite que sejam utilizados diferentes tipos de vidros, desde os mais comuns até os laminados e temperados. Além disso, também é possível optar pelos vidros que trazem isolamento térmico e acústico deixando o projeto ainda mais completo.




































































































































































































































